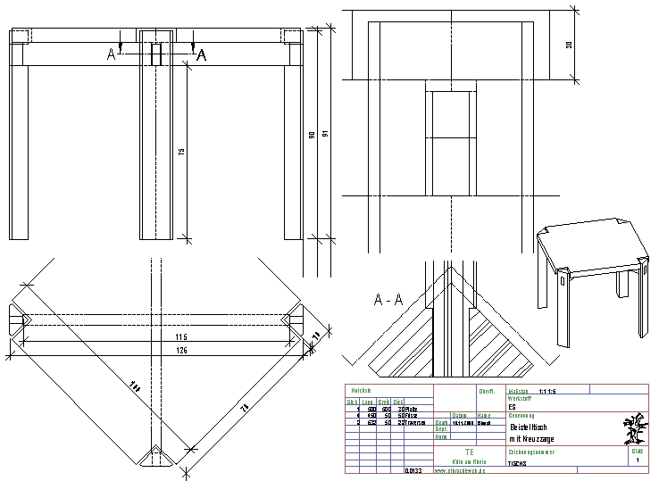
Zeichnung: Beistelltisch

zurück